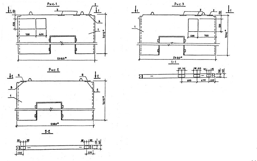
ПВ 30.30
Характеристики изделия:
| Параметр | Значение |
|---|---|
| длина | 2980 мм |
| ширина | 3040 мм |
| высота | 160 мм |
| вес | 3480 кг |
| серия | ТП 503-7-13.88 |
Цена:
Рассчитать стоимостьПВ 30.30 Панели стеновые по проекту ТП 503-7-13.88.
| Параметр | Значение |
|---|---|
| длина | 2980 мм |
| ширина | 3040 мм |
| высота | 160 мм |
| вес | 3480 кг |
| серия | ТП 503-7-13.88 |
ПВ 30.30 Панели стеновые по проекту ТП 503-7-13.88.