СВ 85

Чертеж изделия:
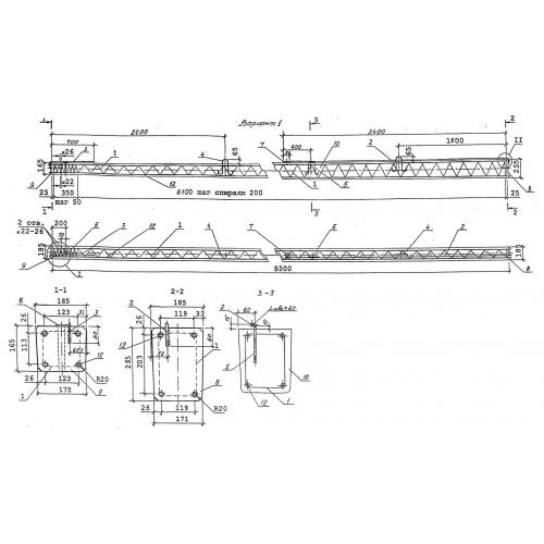
Характеристики изделия:
ПараметрЗначение
длина8500 мм
ширина165 мм
высота230 мм
масса660 кг
нормативный документШифр 20.0139

СВ 85 Стойки вибрированные по Шифру 20.0139.