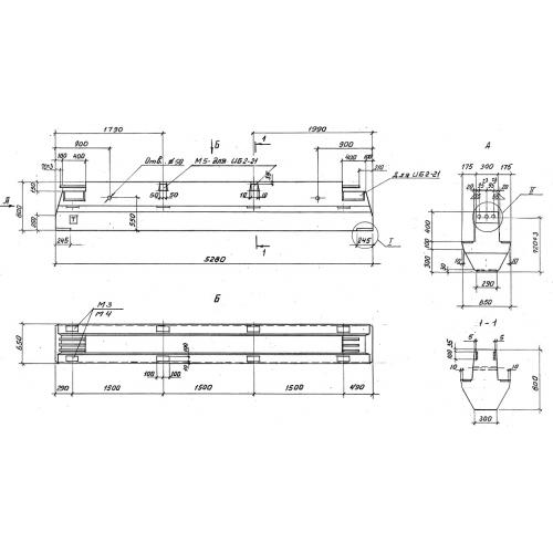
ИБ 2 ригели с полками для опирания плит

Чертеж изделия:
Характеристики изделия:
ПараметрЗначение
длина5280 мм
ширина650 мм
высота800 мм
масса4250 кг
нормативный документСерия 23-1/70

ИБ 2  Ригели с полками для опирания плит по Серии 23-1/70.