ВБ 2-28 вентблоки

Чертеж изделия:
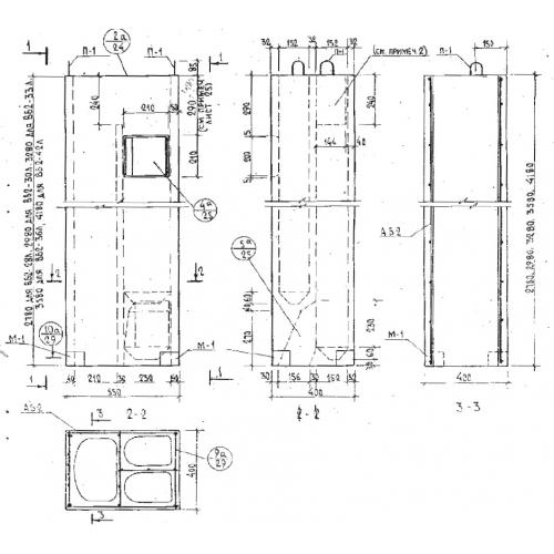
Характеристики изделия:
ПараметрЗначение
длина550 мм
ширина400 мм
высота2780 мм
масса630 кг
нормативный документСерия Б1.134.1-7

ВБ 2-28 Вентблоки по Серии Б1.134.1-7.