ВБ 1-30 вентблоки

Чертеж изделия:
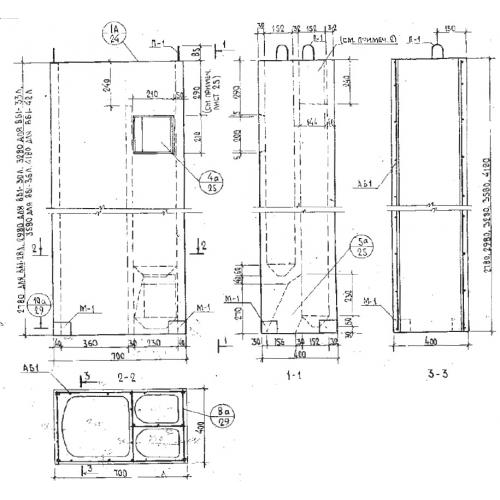
Характеристики изделия:
ПараметрЗначение
длина700 мм
ширина400 мм
высота2980 мм
масса778 кг
нормативный документСерия Б1.134.1-7

ВБ 1-30 Вентблоки по Серии Б1.134.1-7.