ПС
Характеристики изделия:
| Параметр | Значение |
|---|---|
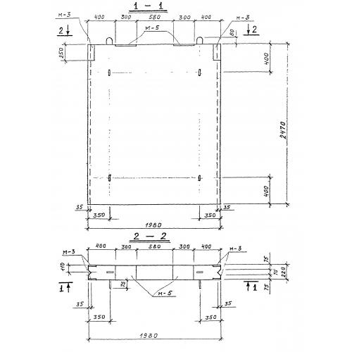
| длина | 1980 мм |
| ширина | 220 мм |
| высота | 2470 мм |
| масса | 2680 кг |
| нормативный документ | Серия 3.903 КЛ-13 |
Цена:
Рассчитать стоимостьПС Панели стеновые по Серии 3.903 КЛ-13.
| Параметр | Значение |
|---|---|
| длина | 1980 мм |
| ширина | 220 мм |
| высота | 2470 мм |
| масса | 2680 кг |
| нормативный документ | Серия 3.903 КЛ-13 |
ПС Панели стеновые по Серии 3.903 КЛ-13.
