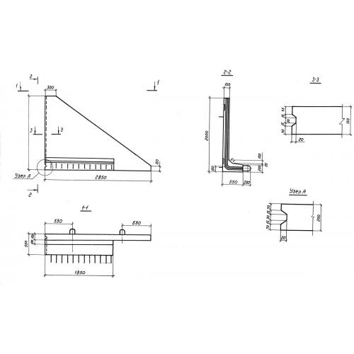
НГ 20

Чертеж изделия:
Характеристики изделия:
ПараметрЗначение
длина2850 мм
ширина780 мм
высота2000 мм
вес1550 кг
серия3.820.1-39

НГ 20 Г-образные конструкции с "ныряющей" вертикальной стенкой многоцелевого назначения по серии 3.820.1-39.