СБ-30

Чертеж изделия:
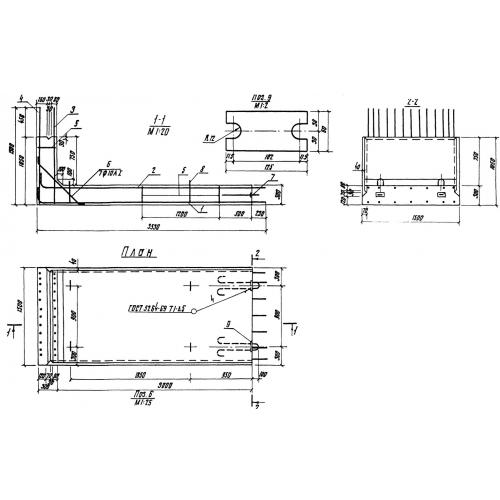
Характеристики изделия:
ПараметрЗначение
длина1500 мм
ширина1500 мм
высота3530 мм
масса4430 кг
нормативный документСерия 3.820.1-29

СБ-30 Стеновые блоки по Серии 3.820.1-29.