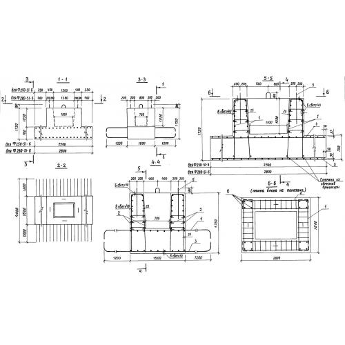
Ф 280-51
Характеристики изделия:
| Параметр | Значение |
|---|---|
| длина | 4400 мм |
| ширина | 2800 мм |
| высота | 1750 мм |
| вес | 14000 кг |
| серия | 3.503.1-76 |
Цена:
Рассчитать стоимостьФ 280-51 Симметричные блоки фундамента по серии 3.503.1-76.
| Параметр | Значение |
|---|---|
| длина | 4400 мм |
| ширина | 2800 мм |
| высота | 1750 мм |
| вес | 14000 кг |
| серия | 3.503.1-76 |
Ф 280-51 Симметричные блоки фундамента по серии 3.503.1-76.
