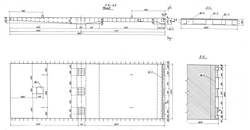
П 41-11,5
| Параметр | Значение |
|---|---|
| Длина | 6970 мм |
| Ширина | 2500 мм |
| Высота | 250 мм |
| Масса | 7630 кг |
| Нормативный документ | Серия 3.503-50 |
Стандарт изготовления изделия: Серия 3.503-50
Блоки плит П 41-11,5 представляют собой универсальные железобетонные изделия, пользующиеся широким спросом в строительной сфере. Применяются при возведении пролетных строений автодорожных мостов с ездой поверху, пролетами в свету 40, 60 и 80 метров под габариты Г-10 и Г-11,5. Внешне строительные элементы представлены прямоугольной формы, в центральной части имеется небольшой выступ, а наличие выпусков арматуры служит для сопряжения с другими конструкциями. Данные изделия являются высокопрочными, обеспечивают надежность, безопасность в эксплуатации и долговечность сооружению. Благодаря данным изделиям гарантируется необходимое упрочнение конструкции, тем самым продлевается срок ее службы, не требуя долгое время дополнительных затрат. Регламент допускает применение данных деталей в районах с расчетной температурой до -40 градусов по Цельсию, и в северных районах, где температура составляет ниже -40 градусов по Цельсию.
Маркировка
1. П - тип изделия;
2. 4 - величина выступа у элемента;
3. 1 - индекс, указывающий на армирование (П 11, П 41-A-II; П 21, П 31-A-I)
4. 11,5 - габарит под пролетное строение.