Р

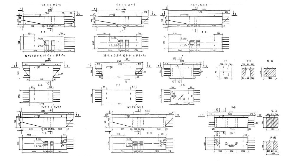
Чертеж изделия:
Характеристики изделия:
ПараметрЗначение
длина5290 мм
ширина1200 мм
высота800 мм
масса10000 кг
нормативный документСерия 3.503-23

Р  Блоки ригеля Серия 3.503-23.