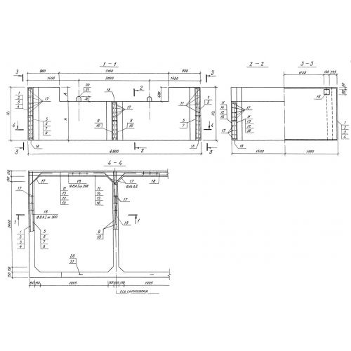
КБ 1-1.7

Чертеж изделия:
Характеристики изделия:
ПараметрЗначение
длина4900 мм
ширина3000 мм
высота1700 мм
вес9380 кг
серия3.501.1-167

КБ 1-1.7 Короба по серии 3.501.1-167.