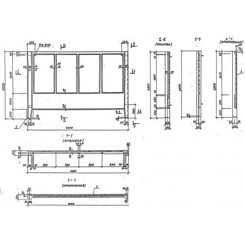
1ПБ 40.20 панель ограждения

Чертеж изделия:
Характеристики изделия:
ПараметрЗначение
длина4000 мм
ширина160 мм
высота2550 мм
масса1700 кг
нормативный документСерия 3.017-3

1ПБ 40.20  Плита бетонная (панель ограждения) Серия 3.017-3.