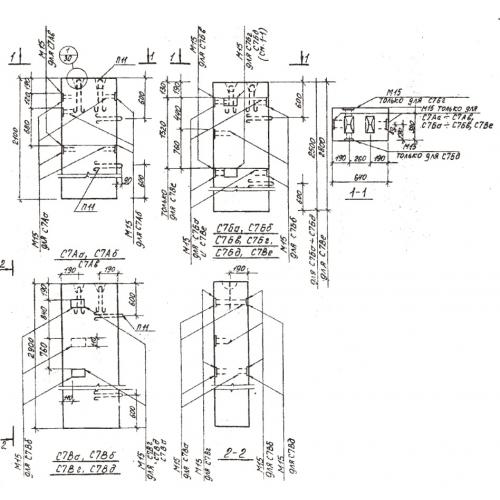
С 7 А столб забора
Характеристики изделия:
| Параметр | Значение |
|---|---|
| длина | 2100 мм |
| ширина | 380 мм |
| высота | 640 мм |
| масса | 1220 кг |
| нормативный документ | Серия 3.017-1 |
Цена:
Рассчитать стоимостьС 7 А Столбы оград Серия 3.017-1.
| Параметр | Значение |
|---|---|
| длина | 2100 мм |
| ширина | 380 мм |
| высота | 640 мм |
| масса | 1220 кг |
| нормативный документ | Серия 3.017-1 |
С 7 А Столбы оград Серия 3.017-1.
