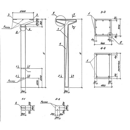
К 20
Характеристики изделия:
| Параметр | Значение |
|---|---|
| длина | 6800 мм |
| ширина | 2400 мм |
| высота | 2400 мм |
| масса | 3700 кг |
| нормативный документ | Серия 3.015-16.94 |
Цена:
Рассчитать стоимостьК 20 Колонны бетонные Серия 3.015-16.94.
| Параметр | Значение |
|---|---|
| длина | 6800 мм |
| ширина | 2400 мм |
| высота | 2400 мм |
| масса | 3700 кг |
| нормативный документ | Серия 3.015-16.94 |
К 20 Колонны бетонные Серия 3.015-16.94.
