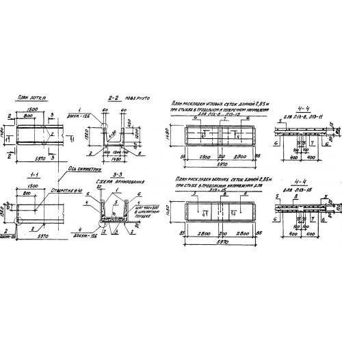
Л 13
Характеристики изделия:
| Параметр | Значение |
|---|---|
| длина | 5970 мм |
| ширина | 1480 мм |
| высота | 1320 мм |
| масса | 6300 кг |
| нормативный документ | Серия 3.006.1-2/82 |
Цена:
Рассчитать стоимостьЛ 13 Лотки теплотрасс Серия 3.006.1-2/82.
| Параметр | Значение |
|---|---|
| длина | 5970 мм |
| ширина | 1480 мм |
| высота | 1320 мм |
| масса | 6300 кг |
| нормативный документ | Серия 3.006.1-2/82 |
Л 13 Лотки теплотрасс Серия 3.006.1-2/82.
