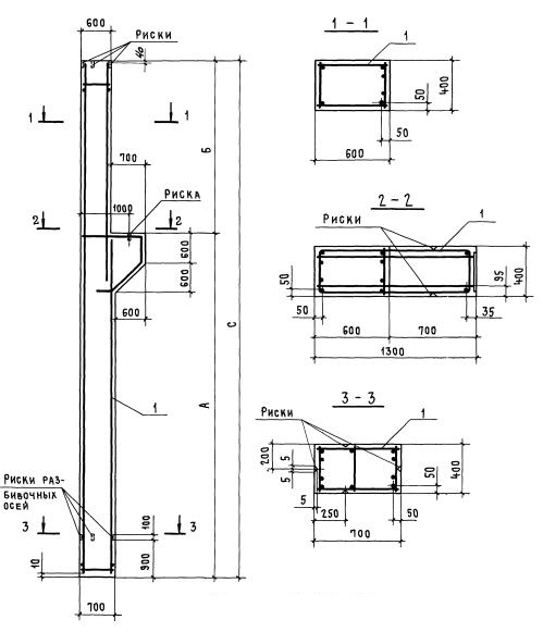
К 84

Чертеж изделия:
Характеристики изделия:
ПараметрЗначение
длина9450 мм
ширина400 мм
высота1300 мм
масса6800 кг
нормативный документСерия 1.424.1-5

К 84  Колонны крайние Серия 1.424.1-5.