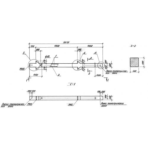
К 36 колонны

Чертеж изделия:
Характеристики изделия:
ПараметрЗначение
длина10170 мм
ширина400 мм
высота400 мм
масса4100 кг
нормативный документСерия 1.420-35.95

К 36 Колонны Серия 1.420-35.95.