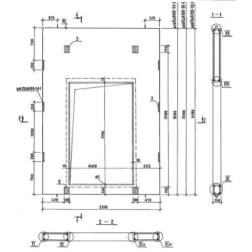
ПШЛ 100-36

Чертеж изделия:
Характеристики изделия:
ПараметрЗначение
длина2510 мм
ширина140 мм
высота3580 мм
вес2060 кг
серия1.289.1-2

ПШЛ 100-36 Панели шахт лифтов по серии 1.289.1-2.