П 60.12
Характеристики изделия:
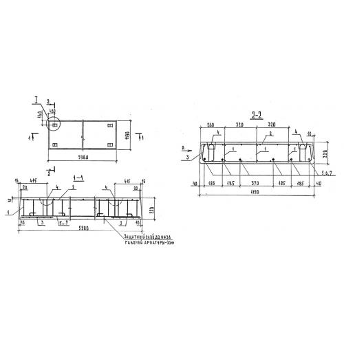
| Параметр | Значение |
|---|---|
| длина | 5980 мм |
| ширина | 1190 мм |
| высота | 220 мм |
| вес | 3850 кг |
| серия | 1.243.1-5 |
Цена:
Рассчитать стоимостьП 60.12 Панели перекрытий беспустотные по серии 1.243.1-5.
| Параметр | Значение |
|---|---|
| длина | 5980 мм |
| ширина | 1190 мм |
| высота | 220 мм |
| вес | 3850 кг |
| серия | 1.243.1-5 |
П 60.12 Панели перекрытий беспустотные по серии 1.243.1-5.
