ПП 15.5 плиты парапетные
Характеристики изделия:
| Параметр | Значение |
|---|---|
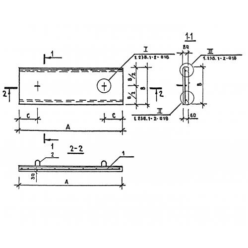
| длина | 1490 мм |
| ширина | 520 мм |
| высота | 80 мм |
| масса | 135 кг |
| нормативный документ | Серия 1.238.1-2 |
Цена:
Рассчитать стоимостьПП 15.5 Плиты парапетные Серия 1.238.1-2.
| Параметр | Значение |
|---|---|
| длина | 1490 мм |
| ширина | 520 мм |
| высота | 80 мм |
| масса | 135 кг |
| нормативный документ | Серия 1.238.1-2 |
ПП 15.5 Плиты парапетные Серия 1.238.1-2.
