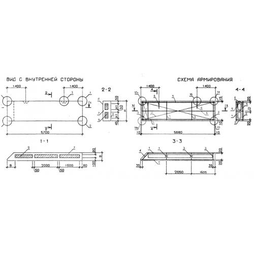
ПСТ 57.18.2.5 панели стеновые

Чертеж изделия:
Характеристики изделия:
ПараметрЗначение
длина5700 мм
ширина250 мм
высота1785 мм
масса3680 кг
нормативный документСерия 1.232.1-7

ПСТ 57.18.2.5  Панели стеновые трехслойные (рядовые для внутренних углов зданий) Серия 1.232.1-7.