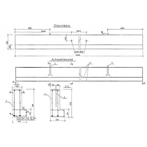
ПР 90.4.7

Чертеж изделия:
Характеристики изделия:
ПараметрЗначение
длина8980 мм
ширина380 мм
высота740 мм
масса4780 кг
нормативный документСерия 1.225.1-3

ПР 90.4.7  Прогоны  Серия 1.225.1-3.