ПР 72.15

Чертеж изделия:
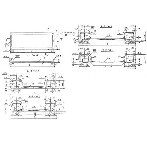
Характеристики изделия:
ПараметрЗначение
длина7180 мм
ширина1490 мм
высота220 мм
вес3325 кг
серия1.220.1-2

ПР 72.15 Панели перекрытия ребристые по серии 1.220.1-2.