ПР 60-15
Характеристики изделия:
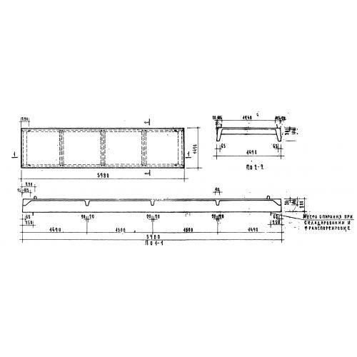
| Параметр | Значение |
|---|---|
| длина | 5980 мм |
| ширина | 1490 мм |
| высота | 300 мм |
| вес | 1492,5 кг |
| серия | 1.165-1 |
Цена:
Рассчитать стоимостьПР 60-15 Панели ребристые по серии 1.165-1.
| Параметр | Значение |
|---|---|
| длина | 5980 мм |
| ширина | 1490 мм |
| высота | 300 мм |
| вес | 1492,5 кг |
| серия | 1.165-1 |
ПР 60-15 Панели ребристые по серии 1.165-1.
