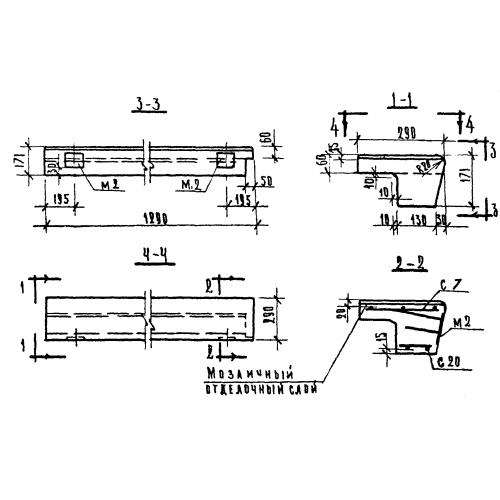
ЛСП 11-17 ступени лестничные
Характеристики изделия:
| Параметр | Значение |
|---|---|
| длина | 1290 мм |
| ширина | 290 мм |
| высота | 171 мм |
| масса | 105 кг |
| нормативный документ | Серия 1.155-1 |
Цена:
Рассчитать стоимостьЛСП 11-17 Лестничные ступени (площадочные вкладыши) Серия 1.155-1.
