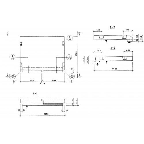
ЛП-22.18

Чертеж изделия:
Характеристики изделия:
ПараметрЗначение
длина2200 мм
ширина1900 мм
высота320 мм
вес2160 кг
серия1.152-7

ЛП-22.18 Лестничные площадки ребристые по серии 1.152-7.