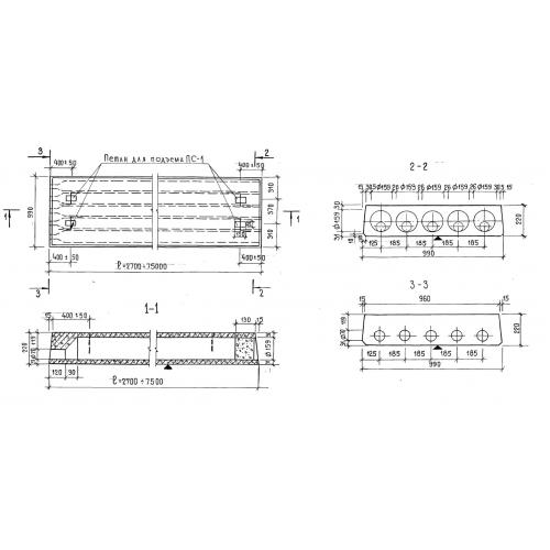
БПК 65.10

Чертеж изделия:
Характеристики изделия:
ПараметрЗначение
длина6500 мм
ширина990 мм
высота220 мм
вес1938 кг
серия1.141.1 КР-3

БПК 65.10 Панели с круглыми пустотами без выпускных ребер по серии 1.141.1 КР-3.