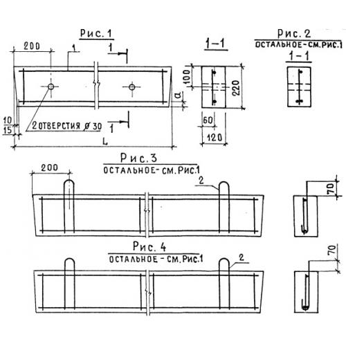
БУ 15

Чертеж изделия:
Характеристики изделия:
ПараметрЗначение
длина1550 мм
ширина120 мм
высота220 мм
вес105 кг
серия1.139-1

БУ 15 Перемычки брусковые усиленные по серии 1.139-1.