БП 19
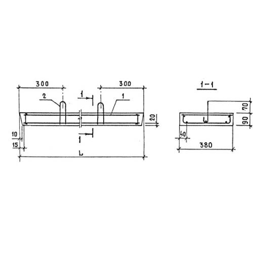
Характеристики изделия:
| Параметр | Значение |
|---|---|
| длина | 1950 мм |
| ширина | 380 мм |
| высота | 90 мм |
| вес | 185 мм |
| серия | 1.139-1 |
Цена:
Рассчитать стоимостьБП 19 Плитные перемычки по серии 1.139-1.
| Параметр | Значение |
|---|---|
| длина | 1950 мм |
| ширина | 380 мм |
| высота | 90 мм |
| вес | 185 мм |
| серия | 1.139-1 |
БП 19 Плитные перемычки по серии 1.139-1.
.jpg)