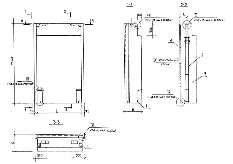
СБ 5.1-13.24.5-п-1

Чертеж изделия:
Характеристики изделия:
ПараметрЗначение
длина1315 мм
ширина500 мм
высота2380 мм
масса2389 кг
нормативный документСерия 1.138.1-12

Серия 1.138.1-12

СБ – стеновые блоки наружных стен, тип блока 5 – парапетный блок.