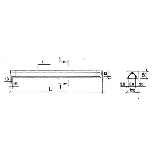
1ПР 15

Чертеж изделия:
Характеристики изделия:
ПараметрЗначение
длина1550 мм
ширина120 мм
высота65 мм
вес30 кг
серия1.138-10

1ПР 15 Перемычки брусковые по серии 1.138-10.