ВБН 12.18.5

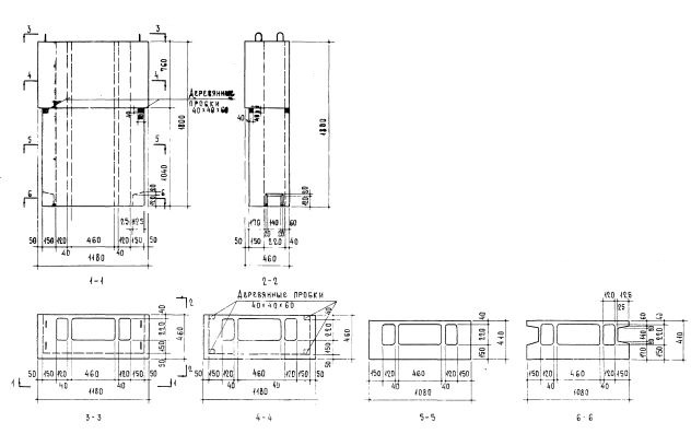
Чертеж изделия:
Характеристики изделия:
ПараметрЗначение
длина1180 мм
ширина460 мм
высота1800 мм
масса713 кг
нормативный документСерия 1.134-3

ВБН 12.18.5 Наружные вентиляционные блоки Серия 1.134-3.