ВБН-12.13.4-п
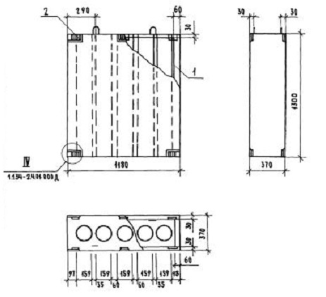
Характеристики изделия:
| Параметр | Значение |
|---|---|
| Длина | 1180 мм |
| Ширина | 370 мм |
| Высота | 1300 мм |
| Масса | 530 кг |
| Нормативный документ | Серия 1.134-2 |
Цена:
Рассчитать стоимостьБлоки внутренних стен толщиной 16 см и вентялиционные блоки для жилых зданий высотой 1-4 этажа и общественных зданий высотой 1-3 этажа по Серии 1.134-2.
ВБН-12.13.4-п Вентиляционный блок наружный.