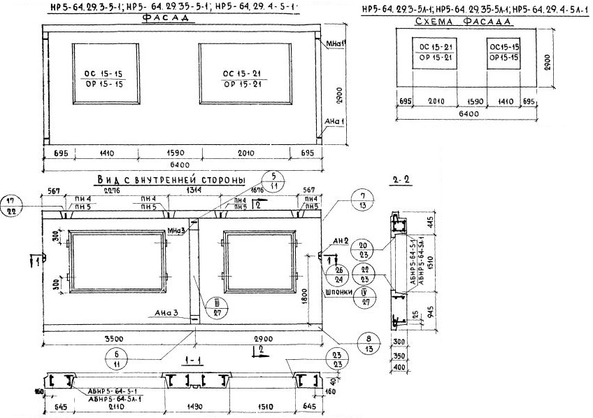
НР5-64.29.3-5-1

Чертеж изделия:
Характеристики изделия:
ПараметрЗначение
Длина6400 мм
Ширина300 мм
Высота2900 мм
Масса5550 кг
Нормативный документСерия 1.132-1

НР5-64.29.3-5-1   Наружная стеновая панель рядовая по Серии 1.132-1.