ПШЛ 50-36
Характеристики изделия:
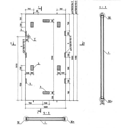
| Параметр | Значение |
|---|---|
| длина | 1660 мм |
| ширина | 140 мм |
| высота | 3580 мм |
| вес | 2080 кг |
| серия | 1.089.1-2 |
Цена:
Рассчитать стоимостьПШЛ 50-36 Панель шахты для пассажирского лифта по серии 1.089.1-2.
| Параметр | Значение |
|---|---|
| длина | 1660 мм |
| ширина | 140 мм |
| высота | 3580 мм |
| вес | 2080 кг |
| серия | 1.089.1-2 |
ПШЛ 50-36 Панель шахты для пассажирского лифта по серии 1.089.1-2.
