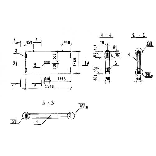
ПШЛ 160-12 панель шахты лифта доборная

Чертеж изделия:
Характеристики изделия:
ПараметрЗначение
длина2510 мм
ширина140 мм
высота1180 мм
масса1040 кг
нормативный документСерия 1.089.1-1

ПШЛ 160-12 Панели шахт лифтов Серия 1.089.1-1.