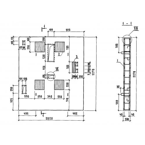
ПЛ 63-20 плита перекрытия шахты лифта
Характеристики изделия:
| Параметр | Значение |
|---|---|
| длина | 2020 мм |
| ширина | 2270 мм |
| высота | 200 мм |
| масса | 2210 кг |
| нормативный документ | Серия 1.089.1-1 |
Цена:
Рассчитать стоимостьПЛ 63-20 Плиты перекрытия шахт лифтов Серия 1.089.1-1.
