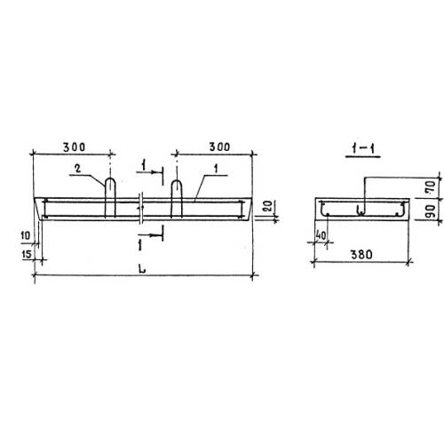
7ПП 14 перемычки плитные

Чертеж изделия:
Характеристики изделия:
ПараметрЗначение
длина1420 мм
ширинав380 мм
высота90 мм
масса121 кг
нормативный документСерия 1.038.1-1

7ПП 14  Железобетонные перемычки плитного типа Серия 1.038.1-1.