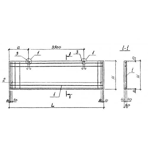
ПГ 50.15 панели перегородки

Чертеж изделия:
Характеристики изделия:
ПараметрЗначение
длина5040 мм
ширина80 мм
высота1485 мм
масса750 кг
нормативный документСерия 1.030.9-2

ПГ 50.15   Перегородки панельные зданий промышленных и сельскохозяйстыенных предприятий Серия 1.030.9-2.