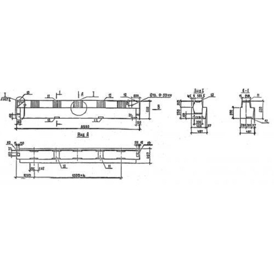
РОП 6.86 ригели

Чертеж изделия:
Характеристики изделия:
ПараметрЗначение
длина8560 мм
ширина497 мм
высота600 мм
масса5000 кг
нормативный документСерия 1.020-1/87

РОП 6.86  Ригели однополочные для опирания многопустотных плит покрытия Серия 1.020-1/87.