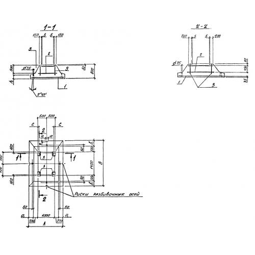
Ф2

Чертеж изделия:
Характеристики изделия:
ПараметрЗначение
длина2400 мм
ширина3000 мм
высота800 м
вес7350 кг
серия0-221-84

Ф2 Плиты фундаментные по серии 0-221-84.